datos técnicos Selección y procedimiento Power-Lock
Si desea consultar los procedimientos de selección y los puntos importantes, continúe a continuación.
Si desea acotar o seleccionar provisionalmente una serie de productos,
Por favor, haga clic aquí.
Si ya se han definido sus condiciones de uso y desea una selección detallada,
Por favor, haga clic aquí.
Selección de la serie EF
1. Compruebe el par máximo y la carga axial.
El par máximo y la carga de empuje se calculan teniendo en Factor de servicio la capacidad de transmisión.
*Al conectar un servomotor o un motor paso a paso, utilice el par máximo (par pico) de cada uno como el par máximo generado (Tmax).
| Unidades del SI |
|---|
|
Tmax = 9550 × H n ・f Tmax = Par máximo (N·m)
|
| Unidades de gravedad |
|---|
|
Tmax = 974 × H n ・f Tmax = Par máximo (kgf·m)
|
Pmax = Pax・f
- Pmax: Carga de empuje máxima kN{kgf}
- Pax: Carga de empuje kN{kgf}
- f: Factor de servicio
f: Factor de servicio
| Condición de carga | Factor de servicio | |
|---|---|---|
| Carga suave sin impactos | Pequeña inercia | 1.5~2.5 |
| Carga de choque ligera | Medio de inercia | 2.0~4.0 |
| Cargas de alto impacto | Gran inercia | 3.0~5.0 |
Cuando solo se aplica el par de torsión
Compare el Tmax obtenido anteriormente con el par de transmisión del catálogo Mt.
Mt ≧ Tmax → Se puede utilizar.
Mt < Tmax → Considere aumentar el número del modelo.
Cuando se aplican simultáneamente par y carga axial
Se calcula la carga combinada M R y se compara con el par transmitido M t.
MR = Tmax2 + (Pmax × d 2 )2
- Tmax: Par máximo N·m{kgf·m}
- Pmax: Carga de empuje máxima N{kgf}
- d: Diámetro del eje m
Compare el M R calculado anteriormente con el par de transmisión del catálogo Mt.
M t ≧ M R → Se puede utilizar.
M t < M R → Considere aumentar el número de modelo.
*Esta serie no se puede utilizar en varias unidades.
2. Consideración del eje y del saliente
(1) Consideración de la resistencia del material
Al fijar el eje y el casquillo, se ejerce una gran presión superficial sobre ellos. Utilice materiales para el eje y el casquillo con una resistencia que cumpla la siguiente fórmula.
σ0.2S≧ 1.2 × P σ0.2B≧ 1.2 × P'
- P: Presión lateral del eje MPa{kgf/mm 2}
- P': Presión lateral del jefe MPa{kgf/mm 2}
- σ 0.2S: Límite elástico del material del eje utilizado MPa{kgf/mm 2}
- σ 0.2B: Límite elástico del material del saliente utilizado MPa {kgf/mm 2}
Consulte la tabla de resistencia de materiales de acero, que muestra los valores del límite elástico de materiales de acero representativos.
(2) Consideración del diámetro exterior del cubo
Consulte la página especificaciones principales de la serie EF.
Para los materiales no incluidos en la tabla, calcule el diámetro exterior del cubo necesario utilizando la siguiente fórmula.
diámetro exterior del cubo D N ≧ D σ0.2B + K 3 ・P' σ0.2B- K 3 ・P' + d G
- D N: diámetro exterior del cubo mm
- D: diámetro del cubo (mm)
- P': Presión lateral del jefe MPa{kgf/mm 2}
- σ 0.2B: Límite elástico del material del saliente utilizado MPa {kgf/mm 2}
- dG: Diámetro nominal del perno de fijación
- K3: Factor de geometría del cubo (consulte especificaciones principales de cada producto).
(3) Consideración del diámetro interior del eje hueco
Calcule el diámetro interior del eje hueco utilizando la siguiente fórmula.
Diámetro interior del eje hueco d B ≦ d × σ0,2S- 2・P・K 3 σ0,2S
- d B: Diámetro interior del eje hueco mm
- d: Diámetro del eje (mm)
- P: Presión lateral del eje MPa{kgf/mm 2}
- σ0.2S: Límite elástico del material del eje utilizado MPa{kgf/mm 2}
- K3: Factor de geometría del cubo (consulte especificaciones principales de cada producto).
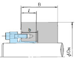
3. Carga radial
Cuando una carga radial actúa sobre Power-Lock, como en una transmisión por correa, calcule las presiones superficiales Prad y P'rad en los lados del eje y del cubo que generará dicha carga radial, utilizando la siguiente fórmula. Compare las presiones superficiales en el eje y el cubo con las indicadas en el catálogo para asegurarse de que se encuentran dentro de los valores admisibles de la Tabla 3.
Prad = 1.3 × Pr d × ℓ
P'rad = 1.3 × Pr D × ℓ
- Pr: Carga radial N{kgf}
- ℓ: Ancho de la superficie de contacto entre el saliente y el anillo exterior (mm)
- d: Diámetro del eje (mm)
- D: diámetro del cubo (mm)
- P: Presión lateral del eje MPa{kgf/mm 2}
- P': Presión lateral del jefe MPa{kgf/mm 2}
Para calcular el diámetro exterior del cubo requerido Dn y el diámetro interior del eje hueco dB cuando se aplica dicha carga radial, sume Prad y P'rad a P y P' respectivamente.
| serie | Prad(P'rad)/P(P') |
|---|---|
| EF | 20% o menos |
